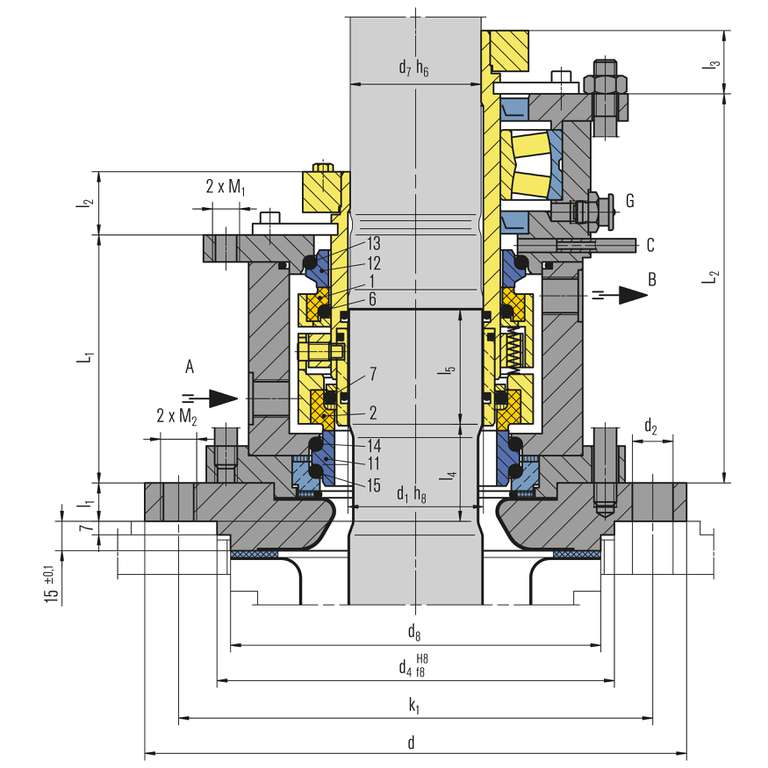
Pos. Benennung
1 Gleitring atmosphärenseitig
2 Gleitring produktseitig
6, 7, 13, 14, 15 O-Ring
11 Gegenring produktseitig
12 Gegenring atmosphärenseitig
Flanschverbindungen nach DIN 28137 T2
für Nenndurchmesser 125 ... 161.

M461K

Merkmale

  • Cartridge-Doppeldichtung für Obenantriebe
  • Für emaillierte Behälter
  • Flüssigkeitsgeschmiert
  • Produktseitig selbstschließend
  • Nicht entlastet
  • Drehrichtungsunabhängig
  • Gruppenbefederung rotierend

Vorteile

  • Montagefertige und werksgeprüfte Einheit
  • Mit oder ohne Lager lieferbar
  • Für Standardisierungen geeignet
  • Es sind höhere Drücke und Drehzahlen als in der DIN vorgegeben möglich
  • Die komplette Dichtungseinheit kann vom emaillierten Flansch abgehoben werden. Der empfindliche Grundflansch bleibt am Kessel.
  • ATEX-Bescheinigung auf Anfrage

Einsatzbereich

Wellendurchmesser:
d1 = 40 ... 160 mm (1,57" ... 6,30")
Druck:
p1 = Vakuum ... 16 bar (232 PSI),
p3 = max. 18 bar (261 PSI)
Temperatur:
t1 = -40 °C ... +200 (250*) °C
(-40 °F ... +392 (482*) °F)
Gleitgeschwindigkeit:
vg = 0 ... 5 m/s (0 ... 16 ft/s)

Anwendungen außerhalb dieses Einsatzbereiches auf Anfrage.

* mit Kühlflansch

! Bitte beachten Sie, dass die angegebenen Einsatzgrenzen sich gegenseitig beeinflussen und somit nicht alle Extremwerte gleichzeitig in Anspruch genommen werden können.

Werkstoffe

Gleitringe: Kohlegrafit oder Siliziumkarbid, FDA-konform
Gegenringe: Siliziumkarbid, FDA-konform
Nebendichtungen und metallische Teile nach Einsatz und Kundenwunsch.

Standards und Freigaben

  • FDA
  • ATEX
  • DIN 28138 (Gleitringdichtungen für Rührerwellen)
  • DIN 28136 T3 (für emaillierte Behälter)
  • DIN 28137 T2 (Anschluss Montageflansch für emaillierte Behälter)
  • DIN 28159 (Wellenende für emaillierte Behälter)

Hinweis

Optionen:
  • Kühl- bzw. Heizflansch
  • Leckabzug bzw. Spülung

Empfohlene Dichtungsversorgung

Geschlossener Kreislauf EagleBurgmann TS-System, offener Kreislauf EagleBurgmann SPA, SPN

Produktlinks:
EagleBurgmann TS1000
EagleBurgmann TS2000
EagleBurgmann SPA
EagleBurgmann SPN (manuell)
EagleBurgmann SPN (automatisch)



Produktvarianten

M461KL
Die Variante mit integriertem Loslager

M56K(L)
Doppeldichtung ohne/mit Loslager
für PN 25 (Sonderdichtung auf Anfrage.)

M491KL
Die Baureihe für glatte, nicht abgesetzte Wellen jeden Durchmessers und für Anschlussmaße außerhalb der DIN. Kundenspezifische Anpassungen oder z.B. andere Drehmomentübertragungen sind möglich.

Ähnliche Produkte

ERB

  • Cartridgeeinheit
  • Doppeldichtung mit integriertem Lager
  • Nicht entlastet
  • Drehrichtungsunabhängig

HS-D

  • Für Obenantriebe
  • Doppeldichtung
  • Nicht entlastet
  • Drehrichtungsunabhängig
  • Gruppenbefederung rotierend
  • Flüssigkeitsgeschmiert
  • Cartridgeeinheit

HSH(L)U-D

  • Für Untenantriebe
  • Doppeldichtung
  • Entlastet
  • Drehrichtungsunabhängig
  • Gruppenbefederung rotierend
  • Flüssigkeitsgeschmiert
  • Cartridgeeinheit
Kontakt

Individuelle Lösung anfragen

Wir entwickeln und produzieren kundenspezifische Sonder- und Einzellösungen für jeden Anwendungsfall.

Experte kontaktieren Referenzprojekte anzeigen
Zurück zur Übersicht